Devices for Bridges

円筒型枠

  • お問い合わせ 資料請求
円筒型枠 写真

製品説明

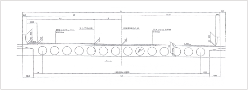
円筒型のワインディングパイプで、コンクリートの使用量を抑え、橋梁の上部構造の軽量化を図る目的で、多くのコンクリート橋や高速道路・鉄道の高架橋などに使用されています。
軽量で強度に優れた製品を、細かい規格のバリエーションで取り揃えております。

円筒型枠設置断面図
円筒型枠設置断面図

取扱製品

(株)栗本鐵工所製品

施工事例

施工事例 写真 施工事例 写真

関連製品

排水管 DB型可撓継手
  • お問い合わせ
  • 製品に関するカタログ・資料請求やお見積もりなどお気軽にお問い合わせください。
  • メールでのお問い合わせ
  • Tel.03-3552-1314